
九日市下町 土地(売買)概要
- 1,080万円
- 豊岡市九日市下町
- JR山陰本線「豊岡」駅 →市内循環〈コバス〉「ドコモショップ豊岡店前」約15分→徒歩約8分
- 八条小校区の土地 ※建築条件付
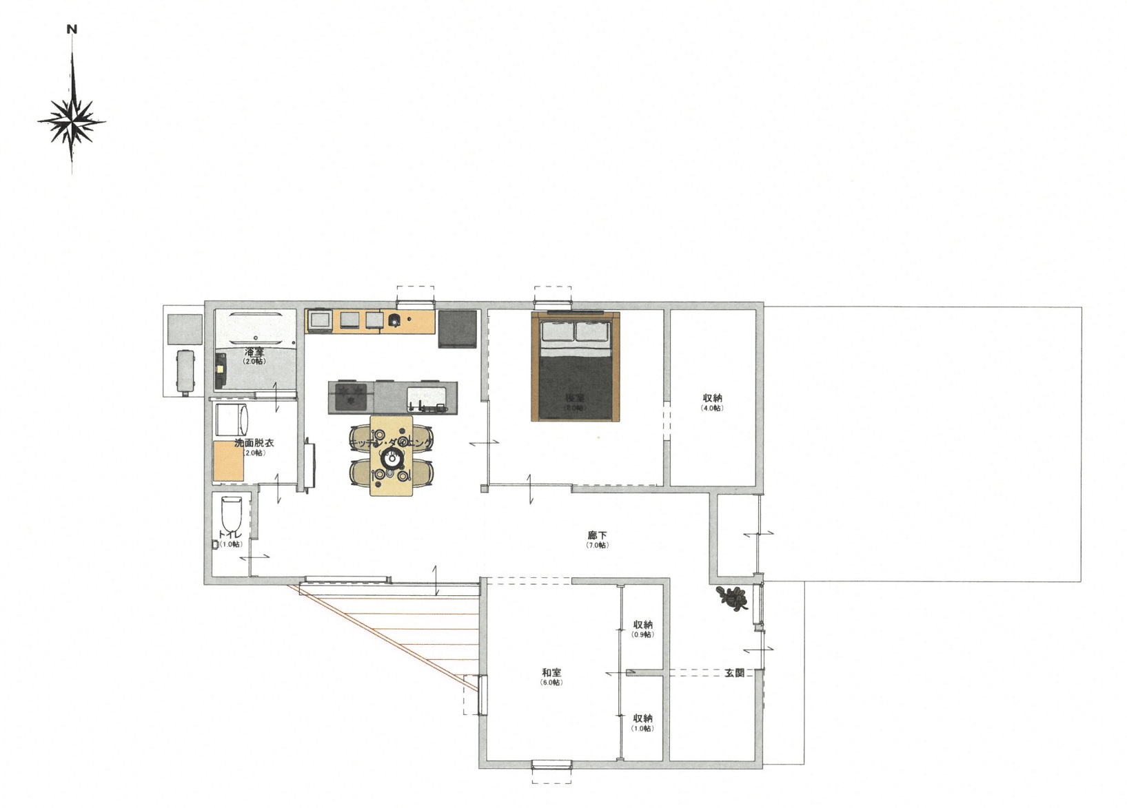
- モデルプラン(CG)紹介https://cloud.eopan.net/panoramas/8c7304/6610
担当者からのおすすめポイント

★生活に通勤に便利な物件です★
八条小学校に徒歩約10分と通学しやすい立地です!(^^)!。近隣には外食やお買い物など各商業施設にアクセスしやすく、北近畿豊岡自動車道「豊岡出石IC」まで車で約4分の立地で通勤等にも便利です(^^)v。
物件詳細情報
| 価 格 | 1,080万円 |
| 土地面積 | 227.16㎡(68.71坪) |
| 所在地番 | 豊岡市九日市下町 |
| 用途地域 | 第一種住居地域 |
| 都市計画 | 区域内(非線引きエリア) |
| 土地地目 | 雑種地 |
| 建ぺい率 | 60% |
| 容 積 率 | 200% |
| 接道道路 | 東側 |
| ライフライン | 上下水道(上水道加入金&下水道受益者負担金必要)・関西電力・都市ガス(豊岡エネルギー) |
| 学 校 区 | 八条小学校・豊岡南中学校 |
| 備 考 | 建築条件付の土地販売です。土地の売買契約を結んだ後、売主指定の建築会社と一定期間内に、建物新築工事請負契約を結ぶことが条件となります。もし希望どおりの家が建てられないとわかった場合、一定期間内であれば、土地の売買契約を白紙解除でき、支払い済みの手付金や申込証拠金などはすべて返却してもらえます。 上記販売価格は、土地代金のみです。 |
| 販売形態 | 仲介 |

クリックで拡大画像をご覧いただけます


物件情報検索

ご予約・お問い合わせはこちらから!
お気軽にご相談ください。

RESERVATION
ご予約
ご予約・お問い合わせはこちらから!
お気軽にご相談ください


